Apartament, dwa balkony, 450 do morza!
Pobierowo gm. Rewal Pokaż na mapie ›
Dodane: Środa, 04 Luty, 2026 01:24
598 080 zł
14240 zł/m2
Szczegóły ogłoszenia
- Kategoria: Mieszkania / Sprzedaż
- Powierzchnia:42 m2
- Liczba pokoi:2 pokoje
- Zabudowa:Apartamentowiec
- Tech. budowy:Inne
- Piętro :3 piętro
- Liczba pięter:3 piętra
- Rynek:Pierwotny
- Rok budowy:2022
- Sprzedaż:Pośrednik
- Inf. dodatkowe:Balkon
- Cena: 598 080 zł / 14240 zł/m2
Opis oferty
Dwupokojowy apartament 450 m od plaży w Pobierowie - położony wsąsiedztwie inwestycji Hiltona i Hotelu Gołębiewski.
Na sprzedaż nowoczesny apartament 42,72 m² z balkonami 7,45 m² oraz
5,30 m².
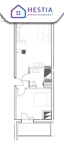
Układ:
salon z aneksem – 24,67 m²
sypialnia – 13 m²
łazienka – 5,05 m²balkon nr1 - 7,45 m²balkon nr2 - 5,30 m².
Lokal w stanie deweloperskim.
Każdy apartament posiada indywidualne ogrzewanie oraz przygotowanie
ciepłej wody użytkowej, obsługiwane przez dwufunkcyjny kocioł
gazowy. Takie rozwiązanie zapewnia pełną niezależność, komfort
użytkowania oraz realną kontrolę nad kosztami eksploatacji. System
umożliwia szybkie nagrzewanie zarówno pomieszczeń, jak i wody.
W skład instalacji wchodzi:
Dwufunkcyjny kocioł gazowy z manualnym sterowaniem, pozwalający na
łatwe i precyzyjne dopasowanie temperatury do indywidualnych potrzeb.
Ogrzewanie podłogowe we wszystkich pomieszczeniach, zapewniające
równomierne rozprowadzanie ciepła, wysoki komfort oraz nowoczesny
wygląd wnętrz bez widocznych grzejników.
Grzejnik drabinkowy w łazience, który umożliwia szybkie dogrzanie
pomieszczenia i wygodne suszenie ręczników.
Do dyspozycji mieszkańców: całoroczny basen, place zabaw, pięknie
zagospodarowany teren, bliskość lasu oraz liczne trasy piesze i
rowerowe.
Inwestycja znajduje się zaledwie 450 m od plaży i oferuje wysoki
potencjał najmu.
Możliwość zakupu miejsca postojowego.
Niskie opłaty eksploatacyjne.
Idealny wybór pod inwestycję lub na własny wypoczynek.
Cena netto – należy doliczyć 23% VAT.
Dysponujemy innymi apartamentami na sprzedaż w różnych metrażach
— zapraszamy do kontaktu.
Działamy na terenie całego województwa zachodniopomorskiego.
Posiadamy oddziały - w Szczecinie, Stargardzie i Szczecinku. Nasi
Doradcy bezpłatnie dojeżdżają do Klientów.
W naszym biurze możesz skorzystać z następujących usług:
- pośrednictwo w kupnie i najmie nieruchomości,
- pośrednictwo w sprzedaży i wynajmie nieruchomości,
- doradztwo finansowe,
- zarządzanie najmem,
- skup nieruchomości
- kompleksowa obsługa deweloperów.
Jesteś zainteresowany naszą ofertą? Zadzwoń do nas już dziś lub
odwiedź naszą stronę www.hestianieruchomosci.pl
Treść niniejszego ogłoszenia nie stanowi oferty handlowej w
rozumieniu Kodeksu Cywilnego. Treść ma charakter informacyjny i
zalecamy ich osobistą weryfikację. Kontaktując się z biurem Klient
wyraża zgodę na przetwarzanie danych osobowych zgodnie z przepisami
ustawy z dnia 29 sierpnia 1997 roku o ochronie danych osobowych /
Dz.U.Nr. 133 poz. 883/. Klientowi przysługuje prawo do wglądu do
swoich danych osobowych i ich aktualizacji.
Powiadom o podobnych ogłoszeniach
Lokalizacja: Pobierowo
Kategoria: Nieruchomości » Mieszkania » Sprzedaż
Cena: od 508500 zł do 688000 zł Powierzchnia : od 36 m2 do 48 m2
Chcę otrzymywać powiadomienia o nowych ofertach
Monika Boroń
Konto firmowe
Na Lento.pl od 01 lut 2026
Strona użytkownika
- Wypromuj ogłoszenie
- Zgłoś naruszenie
- Drukuj ulotkę
- Edytuj/usuń ogłoszenie
- Udostępnij ogłoszenie
- Dodaj na Facebook









